+36 (20) 218 megnézem
ingatlan kódja: SI / 185540
helye: Siófok
típus: eladó családi ház
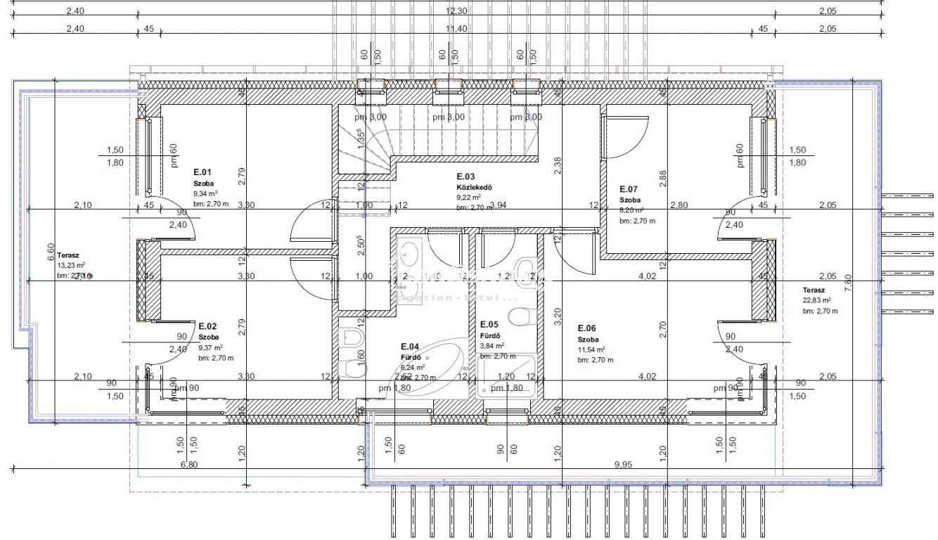
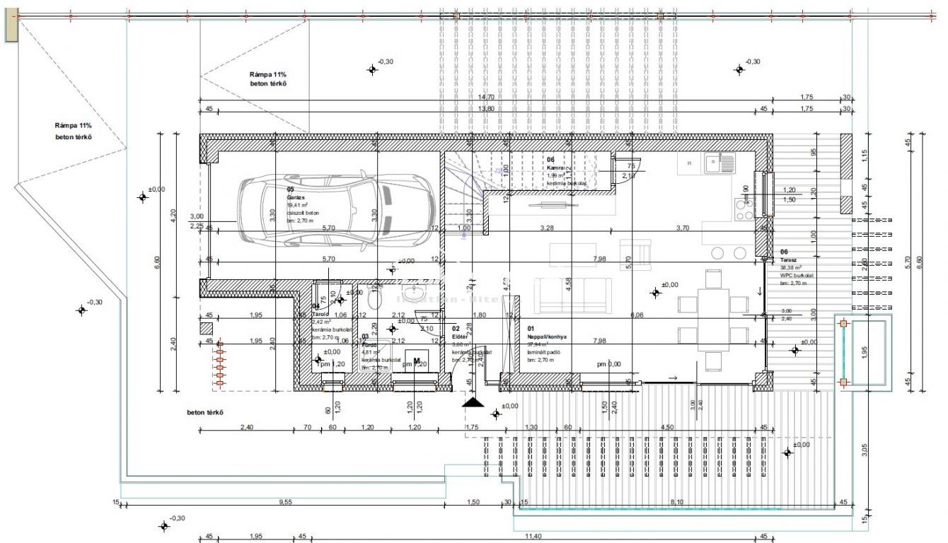
méret: 128 nm (br. 160 nm)
telek mérete: 435 nm
állapot: új építésű
építés anyaga: tégla
fűtés: villany
irányár: 230.000.000 Ft
Kizárólag a Lakáskulcs-direct Ingatlan és Hiteliroda kínálatából megvásárolható:
LEGYEN ÖN IS EGY ELIT KLUB TAGJA!
ÁLOMOTTHON LUXUSKIVITELBEN SIÓFOK ARANYPARTJÁN A BALATONTÓL 100 M-RE!
16 db luxus családi ház kerül megépítésre egy 6861 nm-es partközeli telken. A 8 db telekből álló együttesre telkenként két épület kerül megépítésre, saját, elszeparált kerttel és önálló bejárattal rendelkezik. A modern, egyedi építészeti megoldásokat felvonultató, eleganciát sugárzó házakat kulcsrakész állapotban kínáljuk, parkosított kerttel, öntözőberendezéssel, világítással...
Az épületek alsó szintjén egy légterű konyha és nappali, mellékhelyiség, garázs és fedett terasz található, míg az emeleten 4 szoba és 2 fürdő kap helyet, a Tulajdonosok kényelmét kültéri medence, szauna, jacuzzy szolgálja. Az épületekhez tartozó fedett terasz harmonikus egységként illeszkedik az épülethez, ahol egy belső tér minden komfortját élvezve tartózkodhatnak a szabadban. Állandó otthonnak éppúgy megfelel mint nyaralónak.
A kivitelező, aki számos kifogástalan ingatlant adott át, komoly referenciákkal rendelkezik, nemcsak a minőségi kivitelezésre fordít nagy gondot, de különös hangsúlyt fektet a beépített anyagok, minőségére is, amik kiválasztásában együtt működnek a leendő vásárlókkal.
További információ:
Kovács Zsolt +36 20 218 4274
vagy
Irodánkban (8600 Siófok, Beszédes József sétány 83. fszt. 1.)
munkatársunk
Kovács Zsolt
ügyvezető, tulajdonos
+36 (20) 218 megnézem
HÍVÁSe-mail: kovacs.zsolt@lakaskulcs.hu
Érdeklődjön az ingatlanról:
| típus | méret | ár | |||
|---|---|---|---|---|---|
| 1. | SI / 190130 | eladó ház - Siófok | 137 nm | 243,6 MFt | tovább |
| 2. | SI / 185660 | eladó ház - Siófok | 128 nm | 230,0 MFt | tovább |
| 3. | SI / 185580 | eladó ház - Siófok | 128 nm | 230,0 MFt | tovább |
| 4. | SI / 185530 | eladó ház - Siófok | 128 nm | 230,0 MFt | tovább |
| 5. | SI / 185650 | eladó ház - Siófok | 128 nm | 230,0 MFt | tovább |
| 6. | SI / 185640 | eladó ház - Siófok | 128 nm | 230,0 MFt | tovább |
| 7. | SI / 185630 | eladó ház - Siófok | 128 nm | 230,0 MFt | tovább |
| 8. | SI / 202060 | eladó ház - Siófok | 222 nm | 223,0 MFt | tovább |
| 9. | SI / 185620 | eladó ház - Siófok | 128 nm | 230,0 MFt | tovább |
| 10. | SI / 185560 | eladó ház - Siófok | 128 nm | 230,0 MFt | tovább |
| 11. | SI / 185610 | eladó ház - Siófok | 128 nm | 230,0 MFt | tovább |
| 12. | SI / 185490 | eladó ház - Siófok | 128 nm | 230,0 MFt | tovább |
| 13. | SI / 185570 | eladó ház - Siófok | 128 nm | 230,0 MFt | tovább |
| 14. | SI / 185600 | eladó ház - Siófok | 128 nm | 230,0 MFt | tovább |
| 15. | SI / 185550 | eladó ház - Siófok | 128 nm | 230,0 MFt | tovább |
| 16. | SI / 215690 | eladó ház - Siófok | 175 nm | 245,0 MFt | tovább |
| 17. | SI / 185590 | eladó ház - Siófok | 128 nm | 230,0 MFt | tovább |
| 18. | SI / 185510 | eladó ház - Siófok | 128 nm | 230,0 MFt | tovább |
| 19. | SI / 180730 | eladó ház - Siófok | 140 nm | 179,9 MFt | tovább |
| 20. | SI / 206320 | eladó ház - Siófok | 123 nm | 159,0 MFt | tovább |