+36 (70) 677 megnézem
ingatlan kódja: BP09 / 220790
helye: Tatabánya
típus: eladó családi ház
méret: 100 nm
telek mérete: 558 nm
állapot: közepes
építés anyaga: tégla
fűtés: gáz-központi
irányár: 57.900.000 Ft
Lakáskulcs ingatlan, és hitel iroda eladásra kínálja az alábbi ingatlant.
Tatabánya közkedvelt részén, Bánhidán található ez a több funkciós családi ház, azon belül is egy mellékutcában. Ennek köszönhetően az elhelyezkedése tökéletes.
Az ingatlan erős közepes állapotban van, ami azt jelenti hogy költözhető, de igény esetén költeni kell rá.
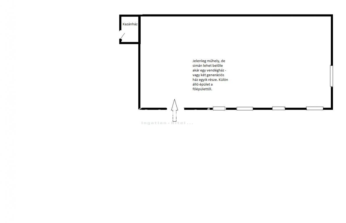
A melléképület (jelenleg műhely) fent van a térképen is, és könnyen lehet belőle vendégház, vagy két generációs ház, de funkcionálhat másként is.
Fontos infó, hogy a ház könnyen bővíthető még 1 szobával, és úgy már egy nagyobb családnak is egy kényelmes otthon lehet.
Séta távolságban ovi, ált suli, pékség, zöldséges, hetes, kisbolt, gyógyszertár, orvosi rendelő. Sőt Kormányhivatal, posta sincs messze.
Jó szívvel ajánlom családoknak, fiataloknak, és idősebb korosztálynak egyaránt.
Amennyiben felkeltettem az érdeklődését, kérem hívjon, és nézzük meg közösen!
Irodánk ingyenes szolgáltatásai:
- Banki hitelügyintézés vezető partner bankjaink termékeivel
- CSOK ügyintézés
- Ingyenes felmérés, tanácsadás.
Irodánk egyéb szolgáltatásai: Ingatlan teljes körű felújítása - átalakítása profin, szakszerűen.
Kérem tekintse meg további hirdetéseimet is, várom hívását!
Ádám Csaba az Ön ingatlan szakértője: +36(70)677 0893
munkatársunk
Ádám Csaba
irodavezető
+36 (70) 677 megnézem
HÍVÁSe-mail: adam.csaba@lakaskulcs.hu
Érdeklődjön az ingatlanról:
| típus | méret | ár | |||
|---|---|---|---|---|---|
| 1. | BP09 / 220160 | eladó ház - Tatabánya | 80 nm | 61,9 MFt | tovább |
| 2. | BP09 / 217240 | eladó ház - Tatabánya | 190 nm | 56,5 MFt | tovább |
| 3. | BP09 / 218280 | eladó ház - Tatabánya | 114 nm | 89,9 MFt | tovább |
| 4. | BP09 / 197030 | eladó ház - Környe | 85 nm | 86,7 MFt | tovább |
| 5. | BP09 / 205230 | eladó ház - Kömlőd | 559 nm | 69,0 MFt | tovább |
| 6. | BP09 / 219720 | eladó ház - Szárliget | 125 nm | 61,9 MFt | tovább |
| 7. | BP09 / 218120 | eladó ház - Szárliget | 129 nm | 58,9 MFt | tovább |
| 8. | BP09 / 220060 | eladó ház - Újbarok | 100 nm | 135,0 MFt | tovább |
| 9. | BP09 / 219870 | eladó ház - Szár | 63 nm | 25,9 MFt | tovább |
| 10. | BP09 / 191110 | eladó ház - Szárliget | 190 nm | 169,0 MFt | tovább |