eladó / hétvégi ház/nyaraló / Balatonföldvár

Hívjon most!

+36 (20) 218 megnézem

ingatlan adatlap:

ingatlan kódja: SI / 203651
helye: Balatonföldvár
típus: eladó hétvégi ház/nyaraló
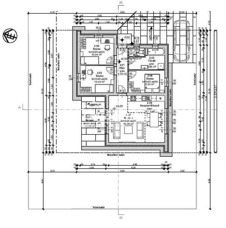
méret: 75 nm (br. 81,62 nm)
telek mérete: 720 nm
állapot: új építésű
építés anyaga: tégla
irányár: 89.900.000 Ft

az ingatlan leírása:

A siófoki Lakáskulcs-direct Ingatlan és Hiteliroda kínálatában:

Balatonföldváron a Kőröshegy lakóparkban ÚJ ÉPÍTÉSŰ családi házak eladók.

720 nm-es telken két különálló minimál stílusú családiház kerül kialakításra. Ingatlanok nappali + 3 hálószoba + fürdőszoba/wc helyiség + tágas terasz kialakítással kerültek tervezésre. Világos tágas belső terek, mely hálószobák méreteikből adódóan jól kihasználhatók és bútorozhatók.

II. épület 75 nm hasznos alapterület + 13,25 nm terasz


A műszaki tervezésnél az energiahatékonyság volt a fő szempont, így energetikailag megfelel a mai kor elvárásainak, alacsony rezsiköltség!

A kivitelező referenciamunkával rendelkezik, jó minőségben, magas műszaki tartalommal épít.

Műszaki tartalomból:

- 30 cm-es külső falazat + 15 cm szigetelés,

- igény esetén napelem kérhető,

- levegő-vizes hőszivattyú, minden helyiségben padlófűtés kerül kialakításra,

- Bejárati ajtó 1db. több ponton záródó hőszigetelt műanyag szerkezetű biztonsági ajtó.

• Beltéri ajtók tokkal: gyári utólagosan szerelhető sima dekor ajtók kizárólag a szerződött
partnerünktől raktárkészletről választhatóak a megadott színekben, kilincs 2000 Ft
értékben választható ajtónként. Előrendeléses ajtók választása nem lehetséges. Beltéri
ajtók bruttó 50 000 Ft/ db értékben választhatók.
• Kültéri ablakok: műanyag nyílászárók fehér színben, 3 rétegű, hőszigetelő üvegezéssel

- A terasz és a belépő burkolása egységes térkő, illetve greslap lerakásával történik. A burkolatok lerakása úsztatott gépi estrich betonra való fektetéssel történik.

- A szobák burkolása terv szerint laminált padlóval.

- Legrand típusú kapcsolók és konnektorok.

 

Parkolás saját autóbellón kerten belül. A lakóparkban a közterületek frissen kialakítva, járdák, közvilágítás már elkészült. 

2024 évi tavaszi átadással, 10% foglaló + ütemezett fizetéssel már foglalózható!

FIX ávételár kulcsrakész átadásig!

Az ingatlan CSALÁDI OTTHONTEREMTÉSI KEDVEZMÉNY (CSOK) és az ILLETÉKKEDVEZMÉNYEK igénybe vehetők.

Az ingatlan tökéletes választás fiatal párok, családalapítás előtt állóknak és befektetők részére egyaránt!

Az ingatlan megvásárlása esetén egyszeri díjmentes helyszíni lakberendezési konzultációt biztosítunk. Igény esetén az ingatlan teljes belső tereinek tervezését 3D látványtervekkel / berendezését akár generál kivitelezés keretében lakberendező segítségével kulcsrakész állapotig vállaljuk, hogy Önnek szabadidejében ezzel már ne kelljen foglalkozni, továbbiakban legélhetőbb és mai trendeknek megfelelő ingatlan berendezésben élhessen mindennapjait.

Bővebb információért és a megtekintésért keressen bizalommal: Kovács Zsolt +36 (20) 218 4274


iroda: Siófok

Kovács Zsolt

Kovács Zsolt

ügyvezető, tulajdonos

+36 (20) 218 megnézem

HÍVÁS

e-mail: kovacs.zsolt@lakaskulcs.hu

iroda adatlapja

Érdeklődjön az ingatlanról:





további ingatlanajánlatok hasonló kategóriában

típus méret ár  
eladó nyaraló - Zamárdi 152 nm 300,0 MFt tovább
eladó nyaraló - Siófok 80 nm 80,0 MFt tovább
eladó nyaraló - Siófok 108 nm 99,9 MFt tovább
eladó nyaraló - Siófok 60 nm 26,0 MFt tovább
eladó nyaraló - Siófok 60 nm 89,9 MFt tovább
eladó nyaraló - Balatonszabadi 50 nm 37,5 MFt tovább
eladó nyaraló - Siófok 85 nm 95,0 MFt tovább
eladó nyaraló - Ságvár 82 nm 35,5 MFt tovább
eladó nyaraló - Siófok 68 nm 110,0 MFt tovább
5 ingatlaniroda
890 eladó ingatlan
114 kiadó ingatlan
301 új építésű ingatlan
0 akciós banki ingatlan
Energetikai tanúsítvány