kiadó / lakás / Sopron

Hívjon most!

+36 (20) 939 megnézem

ingatlan adatlap:

ingatlan kódja: SO / 218060
helye: Sopron
típus: kiadó lakás
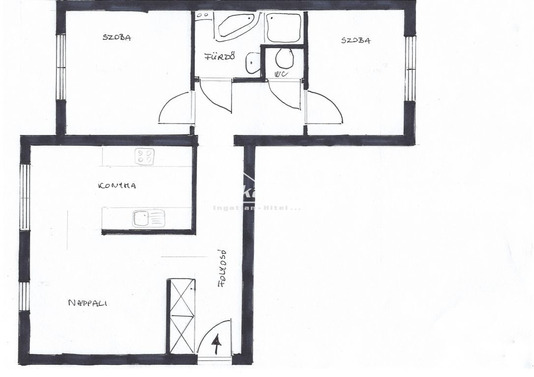
méret: 64 nm
állapot:
építés anyaga: tégla
fűtés: gáz-cirkó
emelet: 2. emelet
irányár: 230.000 Ft

az ingatlan leírása:

Sopronban, az Aranyhegy városrészben kiadó egy 64 nm-es, nappali + 2 szobás, jó állapotú lakás, 2000-ben épült, rendezett társasház második emeletén. A lakás fűtéséről gáz-cirkó rendszer gondoskodik, elrendezése praktikus, világos és jól használható. Az ingatlan, frissen fehérre festve, azonnal költözhető. A lakáshoz saját, zárható tároló (2,5 nm)és udvari gépkocsi-beállási lehetőség is tartozik. Nyílászárói redőnyökkel és rovarhálókkal felszereltek. ár: 600 Euró+rezsi (2 havi kaució szükséges, állattartás nem lehetséges) érd: 0620/939 77 45

iroda: Sopron

Hoppál Krisztián

Hoppál Krisztián

irodavezető-ingatlan

+36 (20) 939 megnézem

HÍVÁS

e-mail: hoppal.krisztian@lakaskulcs.hu

iroda adatlapja

Érdeklődjön az ingatlanról:





további ingatlanajánlatok hasonló kategóriában

típus méret ár  
kiadó lakás - Sopron 60 nm 220 eFt tovább
kiadó lakás - Sopron 47 nm 123 eFt tovább
kiadó lakás - Sopron 80 nm 380 eFt tovább
kiadó lakás - Harka 65 nm 190 eFt tovább
5 ingatlaniroda
881 eladó ingatlan
109 kiadó ingatlan
298 új építésű ingatlan
0 akciós banki ingatlan
Energetikai tanúsítvány