eladó / családi ház / Cserszegtomaj

Hívjon most!

+36 (70) 282 megnézem

ingatlan adatlap:

ingatlan kódja: KE / 217380
helye: Cserszegtomaj
típus: eladó családi ház
méret: 136 nm
telek mérete: 1508 nm
állapot:
építés anyaga: tégla
fűtés: gáz-központi
irányár: 155.000.000 Ft

az ingatlan leírása:

Cserszegtomajon 1.508 m2-es telken 136 m2-es (nettó) több generációs családi ház eladó. Az épületet 2009-ben építették Ytong téglából 5 cm hőszigeteléssel jó minőségben. A tető Creaton cseréppel fedett. Ablakok hőszigetelt redőnnyel védettek.

Az épület két bejárattal rendelkezik, a keleti akadálymentesített, kerekes székkel is bejárható.

A ház két szintjét belső lépcső köti össze.

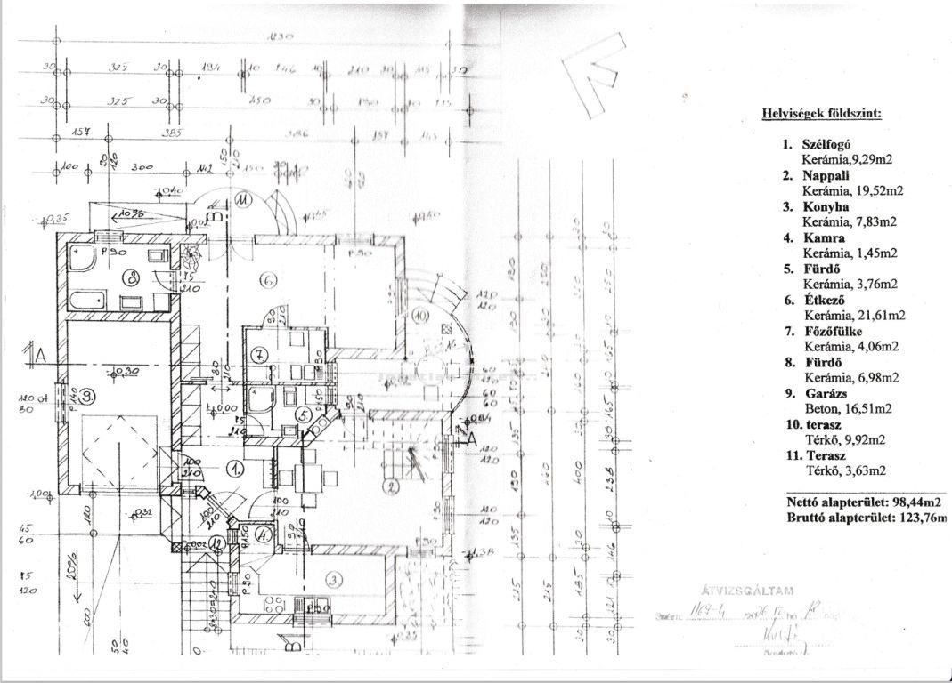
Helyiségek:

Földszint utca fronti lakrész: előtér, konyha, mosdó-WC-gázkazán helyisége, nappali (galériás), fedett terasz, garázs (Hörmann elektromos kapuval).

Földszint keleti lakrész: konyha, nappali, szoba, fürdőszoba (zuhanyzó+kád, WC), keleti terasz.

Tetőtér: belső lépcsőn közelíthető meg, 2 db erkély (keleti és nyugati), előtér, beépített szekrény, gardrób, 2 db szoba, fürdőszoba (kádas, WC), 2 db erkély.

Melléképületek: baromfi ólak, 8 m2-es tároló, alatta 8 m2-es pince, 2 db fedett gépkocsi beálló.

Öntözéshez 2 db kerti csap és 2 m3-es esővíz tároló áll rendelkezésre.

Közművek: villany (3 fázis), víz, csatorna, gáz, kábel TV.

Fűtés: központi gázkazán és központi pellet kazán kombinációja radiátor hőleadással.

Hasznosítási javaslat: befektetési célra, idegenforgalmi célra szobakiadásra, több generációs családnak lakhatásra, mozgásában korlátozott részére.

Ár: 155,- millió Ft

iroda: Keszthely

Visontai Ferenc

Visontai Ferenc

irodavezető

+36 (70) 282 megnézem

HÍVÁS

e-mail: visontai.ferenc@lakaskulcs.hu

iroda adatlapja

Érdeklődjön az ingatlanról:





további ingatlanajánlatok hasonló kategóriában

típus méret ár  
eladó ház - Marcali 140 nm 15,0 MFt tovább
eladó ház - Hévíz 150 nm 152,0 MFt tovább
eladó ház - Hévíz 499 nm 189,0 MFt tovább
eladó ház - Balatonmáriafürdő 200 nm 98,0 MFt tovább
eladó ház - Hévíz 362 nm 235,0 MFt tovább
eladó ház - Alsópáhok 330 nm 69,9 MFt tovább
eladó ház - Hévíz 250 nm 170,0 MFt tovább
5 ingatlaniroda
809 eladó ingatlan
88 kiadó ingatlan
278 új építésű ingatlan
0 akciós banki ingatlan
Energetikai tanúsítvány